設計師:張紅麗(城東旗艦店 高級設計師)
戶型詳情:中南山錦花城108平米 新中式風格
案例說明
現代中式風格,也被稱作新中式風格。現代中式風格設計,既是中國傳統風格文化與現代時尚元素的融合與碰撞,又是在中國當代文化理解基礎上的現代設計。此案例就采用新中式風格,將中式的傳統元素與現代時尚元素巧妙結合,以達到業主想要的效果。
原始結構圖↓
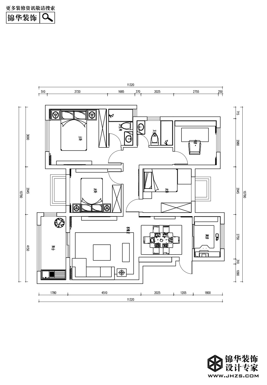
平面布置圖↓
鳥瞰圖↓
俯視圖↓
客戶效果圖↓
客戶效果圖↓
客戶效果圖↓
客戶效果圖↓
客戶效果圖↓
客戶效果圖↓
客戶效果圖↓
客戶效果圖↓
想了解更多中南山錦花城戶型資料么?
錦華裝飾準備了中南山錦花城各戶型全套設計方案、工程量報價、參考效果圖、主材搭配方案.歡迎您和網絡客服取得聯系,預約來店面詳細溝通.錦華裝飾,設計專家!.
江蘇家裝示范品牌
代表地區優秀設計聲音
集28年工程管理經驗之大成
省時、省力更省心
| 走進錦華 | 設計團隊 | 作品列表 | 戶型解析 | 裝修百科 |
關注錦華公眾號
|
瀏覽手機官網 |
全國熱線 025 86550815 |
||||||||||
| 新聞列表 | 錦華文化 | 堂杰國際設計 | 1865旗艦店 | 極簡 | 中古 | 秦淮金茂府 | 常見問題 | ||||||||||
| 全國分公司 | 錦華招聘 | 河西旗艦店 | 鼓北旗艦店 | 法式 | |||||||||||||
| 錦華簡介 | 聯系我們 | 城東旗艦店 | 江寧旗艦店 | 歐式古典 | 北歐 | 中交錦方 | |||||||||||
| 資質榮譽 | 法律聲明 | 江北旗艦店 | 江浦店 | 美式田園 | 新古典 | 溧水玖宸府 | |||||||||||